L'entreprise sera fermée du 22/12/2025 au 26/12/2025 inclus.

Le Clos des Prairies II Joué-sur-Erdre (44)

Terrain
  • En commercialisation
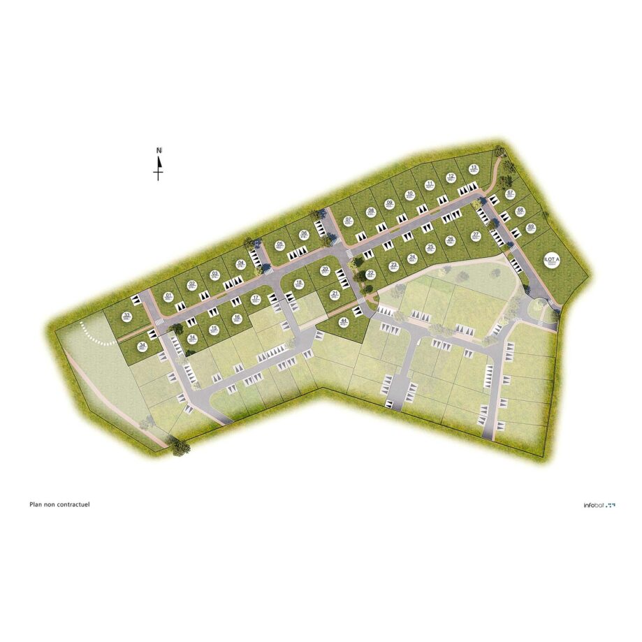
69 lots Viabilisés  et libres de constructeur À partir de 36 000 € De 282 m²  à 621 m²

Réf: VA.JOUE2.44

Description du lot

Vente de terrains constructibles disponibles dans la commune dE JOUÉ-SUR-ERDRE, LOIRE-ATLANTIQUE (44), LE CLOS DES PRAIRIES II :

  • 69 lots viabilisés et libres de constructeur, en deux tranches de commercialisation
  • De 282m² à 621m²
  • A partir de 36 000€

Joué-sur-Erdre est une charmante commune située dans le département de la Loire-Atlantique, en région Pays de la Loire. Nichée à environ 30 kilomètres au nord-est de Nantes, elle offre un cadre de vie paisible et verdoyant, idéal pour les amoureux de la nature et ceux qui recherchent la tranquillité tout en restant à proximité d’une grande ville.

A proximité du programme

  • Education : crèches, écoles maternelles, écoles élémentaires. Collège et lycée à Nort-sur-Erdre (9.4km).
  • Etablissements de santé : médecins, dentistes, infirmier, pharmacie. Un service d’urgences à Ancenis-Saint-Géréon (24.4km).
  • Commerces : boulangeries et restaurants. Hypermarché et supermarché, à Nort-sur-Erdre (9km).
  • Transports : gare SNCF à Abbaretz à 8,8 km et aéroport à Bouguenais à 41,3 km.

Plan du quartier

Infos complémentaires

Pour plus de renseignements sur la commune, nous vous invitons à consulter le site officiel : https://www.jouesurerdre.fr/

Les informations sur les risques auxquels ce bien est exposé sont disponibles sur le site Géorisques : www.georisques.gouv.fr

Plus d'informations sur le programme

Le Clos des Prairies II - Loire-Atlantique (44)

Expert de l’immobilier depuis plus de 20 ans.

aménageur FONCIER, promoteur immobilier

Tout est pensé pour une qualité d’habitat durable, pour que le confort prenne ses aises.

 

Viabilis vous accompagne dans  votre projet d’achat

TERRAIN à BÂTIR

Vous recherchez un terrain viabilisé et libre de constructeur ?

Voir les annonces

APPARTEMENT NEUF

Vous recherchez un appartement neuf pour investir ou habiter ?

Voir les annonces

Restez informés
Suivez nos actualités et nos nouveautés

 

NOS FORCES

Picto Expertise

Plus de 20 ans d'expertise

Picto Moyenshumains3

Des moyens humains et financiers

Picto Accompagnement

Un accompagnement quotidien